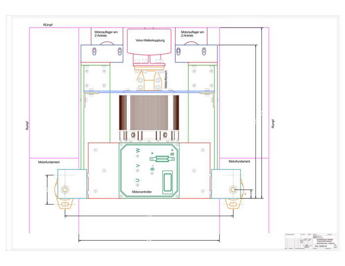
Die CAD-Konstruktion wird erstellt