EWG-48-10-YAN Aufsicht bemaßt

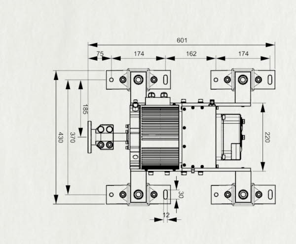
EWG-48-10-YAN, Aufsicht Abmaße